Навес ангарный (павильонный)

Навес ангарного (павильонного) типа представляет собой практичную конструкцию по защите вашего автомобиля, квадроцикла, снегохода или хозяйственного инвентаря. Так же навес может использоваться как хозблок (в случае зашивки стен навеса).

от 140,000 р.

Все элементы навеса изготовлены на предприятии и не требуют доработки при монтаже

Применяемые материалы в металлоконструкции:

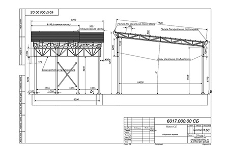
  • Опоры - труба проф. 80х80, или 100х100 (зависит от размеров навеса)
  • Фермы - труба проф. 60х30 и 30х30.

Металлический каркас защищен от коррозии порошковой полимерной атмосферостойкой покраской. Цвет порошковой покраски выбирается заказчиком согласно RAL. За дополнительную плату мы можем сделать предварительное грунтование каркаса цинкосодержащим грунтом или сделать двухслойное окрашивание.

Покрытие кровли возможно сотовым поликарбонатом, монолитным (литым) поликарбонатом, профнастилом или металлочерепицей.
Цвет покрытия кровли выбирается исходя из цвета стандартно производимых материалов.

Все наши навесы изготавливаются только по проектной документации согласованной с заказчиком. Так же, мы проводим прочностные расчеты на снеговые и ветровые нагрузки.
Можем доукомплектовать навес сварными ограждениями, защитными стенками или перегородками, воротами, калиткой. Данный тип навеса может быть комбинированного универсального назначения - одновременно быть и хозблоком, сараем для дров и местом хранения автотранспорта.
К этому навесу мы предлагаем различные решения для практичного размещения и хранения в нем вашего имущества.


Навесы этого типа так же применяются в качестве защитных сооружений на производственных (промышленных) площадках, открытых складах, парковках грузового автотранспорта, спецтехники.

Навес имеет каркас с комбинированными соединениями (болтовые соединения и сварка) изготовленый из металлического профиля и соединительных элементов собственной разработки и изготовления.


Монтаж в среднем производится за три дня (в случае применения в качестве фундамента винтовых свай).

  • Производится устройство фундамента - 1 день.
  • Производится сборка навеса на фундаменте - 2 дня.

При установке навеса на забетонированные закладные потребуется дополнительное время на застывание бетона.

  • БЕСПЛАТНЫЙ ВЫЕЗД специалиста на замеры и согласование.
  • Подгонка навеса в требуемый размер по желанию заказчика.
  • БЕСПЛАТНАЯ ПРОЕКТНАЯ ДОКУМЕНТАЦИЯ и инструкция по самостоятельному монтажу (в случае самостоятельной сборки).
  • Все элементы изготовлены на предприятии и не требуют доработки при монтаже.
  • Доставка и монтаж оплачиваются отдельно.
  • Наличный и безналичный расчет.

Средний срок изготовления - от 10 до 20 раб. дней с момента подписания договора и внесения предоплаты
(зависит от текущей загрузки производства).